At 107 square meters, this Moscow apartment may not be spacious, but careful design and organization from Int2 Architecture has allowed for plenty of storage, a master bedroom and even separate rooms for two children. The team of designers at Int2 has managed to do this without straying from the simplicity and beauty of their chosen modern aesthetic. Cool neutrals and hidden nooks and crannies make this apartment wholly livable, comfortable, and beautiful.

The wooden slat motif that accents the living room ties easily with the funky wooden coffee table and will be seen again in the master bedroom. Light wood rather than dark keeps the space open and bright, perfect for gathering the family.

An oven and microwave recessed into the kitchen wall gives even more space for cooking and meal preparation.

Even the front entryway is not immune from the design's hidden storage options with a cleverly built-in cubby for mail and keys.

The wooden slat theme makes a reappearance in the master bedroom as a support for the bed's headboard. Cool beige, brown, and great with soft fabrics and a platform bed make it the perfect zen retreat.

The children's rooms maintain the neutral color palette while bringing in greens, blues, and even pops of coral along with playful wallpaper and unique works of art.

The overall floor plan of the apartment showcases how cleverly the space is used, with ever square centimeter having a distinct purpose, giving the apartment its spacious feel.

Although originally designed with just one bedroom, the team at Int2 was able to turn this 64 square meter St. Petersburg apartment into a space able to accommodate a master bedroom as well as a separate room for a child. Again, creative storage and cool, neutral color schemes keep this sunny apartment feeling very livable despite its constraints.

The expandable dining table can accommodate up to 9 people, which is no small feat for this small space. If you are curious about how that can be achieved, do check out < a href="https://www.home-designing.com/2014/05/30-extendable-dining-tables-2" target="_blank">this.

A small desk with overhead storage is practical, but the chair can tuck under for extra floor space or flip around for an instant conversation area. Keeping the desk wall painted the same color all the way across makes the bedroom door nearly disappear, giving the illusion of even more space.

The hidden master "bed" room allowed for the creation of a separate nursery, with room to space for a growing child.

This apartment by them in Moscow was awarded the Golden Diploma for Residential Interiors for its creative use of space and marriage of classic and modern elements. Built from a pre-revolutionary house, the apartment has all the trappings of a French neoclassic design with white walls, high ceilings, floor-to-ceiling windows, cornices, and wooden shutters. The team at Int2 was able to contrast these classic elements with their own colorful and distinctly modern choices. The "black box" in the center of the apartment contains the technical appliances necessary for modern living including the pitch, boiler, and bathroom. By containing these elements in one room, the rest of the open, bright space can take on a life of its own.

The owner's artwork certainly acts as a focal point in this apartment. Here you can see a unique highlight, propping a spotlight on the floor to bring attention to the unique piece leaning against the wall.

Chevron wood flooring contrasts with the parallel planks in the bathroom, for an interesting geometric pattern that separates the rooms while maintaining an open feeling.

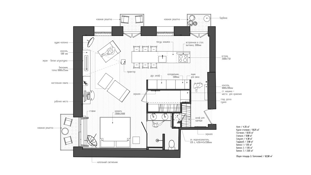
This goal of the Int2 team in this final St. Petersburg apartment was to maximize open space while giving the occupant dedicated, functional areas for living. This began with inserting a separate but open "dining room" in the form of a wooden box, with accordion windows that let in plenty of fresh air and sunlight.

This apartment stays true to a neutral background, particularly with its light color floor and white brick walls, but Int2 uses these neutrals as a backdrop for a warm and welcoming palette that includes coral and blue.

The living area is conducive to conversation, leaving the necessary television in the corner but not making it the focal point of the room.

Hanging Edison bulbs in the kitchen are a modern twist on an antique look while giving practical light for home chefs. Hidden storage in the kitchen's island is open, leaving pots and pans readily accessible.

complement, rather than match, one another for a cozy, bohemian feel.

Plenty of shelving for books and a nook for a piano are a bold indication that the apartment is a home and not just a showcase for design elements.

Wicker laundry baskets provide clean and efficient storage. If you are looking for ideas for beautiful laundry storage, do check out our unique laundry baskets post.





























