It’s an uncommon combo for a two colour accent scheme, but the vibrant clash of red and green is one that pays off in spades when balanced in the correct tones. The three home interiors that we focus on here deliver the red and green decor palette in a variety of combinations. Our first featured home design is a rich rush of deep vermillion elements that encircle teal and pea green accent pieces amidst a sea of freshening white. The power of the white backdrop prevails inside the elegant and artistically executed burgundy and sage accented scheme of tour number two, and in our final modern interior that comes alive under bright beats of the contrasting palette.

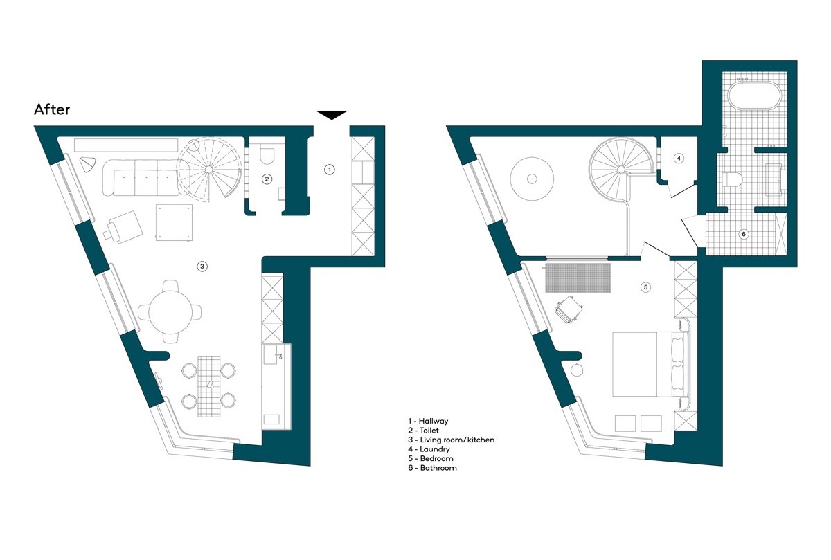
Red spiral stairs twist up through the red and green living room of this 96 square metre property, located in Lviv, Ukraine. The feature staircase takes on a sculptural appearance under its solid vermillion finish.

A teal green sofa creates a rich colour clash against the colourful staircase treatment. A glass coffee table on castors carries a neutral aesthetic with a quirky, modern edge.

A unique floor lamp reflects the colours of the room in its thick chrome stem. A leather lounge chair beds a black anchor point by the wide window.

Light grey flooring falls away into the peripheral of the palette, allowing the bolder pieces to shine.

Hefty coffee table books fill a light reflective glass side table by the sheer white window dressing.

Off-white and pale grey microcement finishes smooth out a modern hallway decor scheme, where mirrored closets increase the sense of space and light.

Vertical tiles follow a slightly curved wall shape toward the front door. Decorative wall hooks dot the light ceramic.

The kitchen diner scheme ignites the taste buds with an appetite inducing ketchup red and pea green decor palette. Modern red dining chairs encircle a matching round dining table. A single wall of solid green cabinets colour the kitchen.

The green kitchen installation is momentarily interrupted by a window of workspace, which is encased within a recycled glass countertop and backsplash.

In the bedroom, a curved teal green surround cosily cocoons the head of the bed with an arrangement of neat bedside ledges and overhead shelving.

In the corner of the bedroom, a mosaic of white tiles finishes a unique modern desk design. A fresh white office chair complements the clean look.

An ultra small sink design and a wall mounted soap dispenser tackle the lack of space in the downstairs powder room.

A distorted view of the living room staircase, via the obscure glass, creates watery red contrast with a wall hung green toilet.

Moments of white tilework compose clean frames around doorways that define the shower and bathtub wet zone and the entryway.

Our second home tour takes place in an elegant and artistically executed burgundy and sage green accented interior.

Deep burgundy scatter cushions contrast richly with the sage tufted sofa. A solid burgundy painted canvas sets up a dramatic backdrop.

A black marble side table steps up the luxe. A chic lamp tops the tinted glass table with a clean white shade, which melds quietly with the surrounding wall colour.

An arched doorway links gracefully into the next space. A round coffee table complements the architectural curve.

A floating tv stand introduces another shapely curve opposite the sofa, whilst an arched chandelier creates a visual anchor for the small dining table.

Inside the bedroom, an upholstered burgundy headboard is mounted onto green colour blocked decor to create stylish contrast. Burgundy closets rise at one side of the room, whilst green drapes balance out the opposite end. A bedroom area rug transfers the green accent to the floor.

Our final home tour takes us to Odessa, Ukraine. This small modern apartment comes alive under bright beats of contrasting colour.

Whilst red throw pillows blend with the upholstered sofa, a yellow ochre throw brings contrast to the lounge palette. A geometric rug layers in an element of pattern that complements areas of textured tiling on partition walls at either side.

A green shelving unit is inset across the structural divide to provide an exciting moment of colour contradiction by the red sofa.

Geometric floor tiles lay an optical illusion along the hallway of the apartment. Louvre doors add interest to the entryway closet.

A custom-made desk and cabinet set builds green colour blocking across the front of the lounge space, which doubles as media storage beneath the TV.

A run of kitchen base cabinets form a buffet by the dining set, where two red dining chairs brighten up the white and wood arrangement.

More green cabinetry builds a fresh looking breakfast bar, which takes on a tropical essence under a built-in bed of indoor plants. A red kitchen backsplash colourfully balances out the opposite side of the space.












