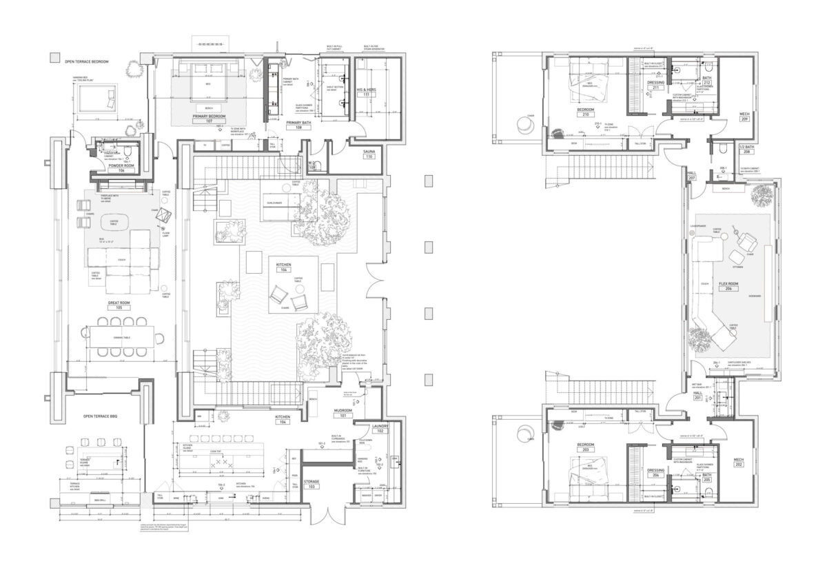
Experience a seamless fusion of contemporary elegance and rustic charm in this remarkable modern home in the Bahamas, designed by architects Sivak+Partners. Embracing the essence of a country house, this 6200 sq ft home has a welcoming warmth. The interior is decorated with natural wood, stone, marble, decorative plaster, and thoughtfully curated elements that harmonize with the classic architectural style of the house. At the heart of this design is a stunning water courtyard, a captivating oasis that bestows a sense of serenity upon the homeowners and their many guests. Stepping stones pass over a blue body of water, while mature trees climb the double-height void.

The airy living room design opens up into a vaulted ceiling of wooden rafters. The canopy of rich wood tone instantly warms the interior palette and sets a rustic aesthetic. A deep brown living room rug reflects the dark ceiling expanse. A modern modular sofa breaks the dark brown decor scheme with pale upholstery.

The sofa is teamed with a contemporary chaise lounge and a pair of mid-century modern Chandigarh chairs by Pierre Jeanneret. The eclectic furniture arrangement is gathered around a modern fireplace design and a hidden TV wall. The television screen is tucked away behind bi-fold doors so that the dancing flame of the fireplace remains the atmospheric focal point of the room.

A large window stands behind the modern chaise lounge chair and an accompanying small side table, composing a comfortable reading area. Cream drapes fall in deep folds at either side of the floor-to-ceiling windows, forming an elegantly textured frame.

In the kitchen, a modern sputnik chandelier stretches its golden spokes above a stone kitchen island with a natural wood breakfast bar extension. Six black bar stools line up along the eating area.

Wooden panels line the wall that leads out into the hallway. A small, rustic bench is tucked into a corner beside the window, where it offers a resting spot with a peep of the water courtyard.

The water courtyard design is breathtaking. Mature trees grow alongside two sweeping staircases, and vines rain down from the sky. The fresh green foliage is reflected in a still blue pool at the center of the courtyard, where stepping stones drop a pathway and create a glorious sitting area.

The double-height void is flooded with natural sunlight, which feeds the plants and the soul. Modern wall sconces are scattered around the walls of the courtyard to softly illuminate the magical space after dark.

Two modern outdoor chairs create an inviting conversational spot at the heart of the courtyard.

A separate stone island in the water courtyard houses a couple of cushioned chaise lounges, pushed together to form a wide daybed.

A second day bed is suspended beneath a shady overhang, amongst potted plants. A modern ceiling fan blissfully cools the air.

The home interior features a rich array of materials and textures, including natural wood, stone, marble, metal, and decorative stucco. The color palette of subtle hues brings understated elegance to the overall aesthetic.

This chic flex room is furnished with a crisp modern sofa and a contemporary lounge chair and ottoman set. A small side table is set beside each one for comfort and convenience. Floating wall shelves appear to extrude from the color-matched walls.

A home workspace is minimally furnished with a sleek wooden desk and a rattan desk chair. A modern desk lamp illuminates the worktop.

The bedrooms have a warm and informal atmosphere, thanks to an array of natural materials and abundant sunlight.

This modern rustic bedroom design is textured with a natural jute rug and a wood and rattan end of bed bench. Pale stucco textures the walls. Above the upholstered headboard, modern art brings all of the natural hues together in one piece.

Multiple relaxation areas are thoughtfully distributed across the property, catering to the needs of the large family and frequent guests. The seamless harmony of natural design elements and warm sunlight envelops every corner.

The unified design language and continuity of materials create restful cohesivity throughout the home.

A coffee machine is tucked into the side of the TV wall in the master bedroom, giving the homeowners a fresh morning brew before they mingle with the rest of the household. A pocket door separates the bedroom from an ensuite bathroom.

Inside the master ensuite, there is a floating double sink bathroom vanity. A pair of round bathroom mirrors are set deep into the wall stucco to achieve a bespoke look. Small wall sconces light the vanity area with a warm amber glow.

The open shower space design features two freestanding showers. A letterbox shelf is recessed into the red travertine wall behind the showers to provide an easy-to-reach holding spot for shampoos and shower gels. A rustic wooden side table adds a decorative touch underneath a couple of robe hooks.


