A wood and concrete brutalist exterior shields this 2900 square foot home design, based in Houston, United States. Created by the architects at Robertson Design, The Concrete Box house conceals a two-story home with a multi-level living space. The ground floor is a brutalist concrete backed room with a distinctly cosy essence that comes from high-end upholstered furniture, attractive wood-clad elements and a functional kitchen placed right at the heart of the home. Private courtyards and a large garden surround the cool concrete interior with beautiful landscaped views. Upstairs, the house is revealed to be a family home, with two kids’ rooms and a serene master suite.

The concept of The Concrete Box house was born from three main goals. The first goal was to begin the experience with a choreographed entry sequence, the second, to maintain material clarity, and the third was to establish a bold sculptural presence.

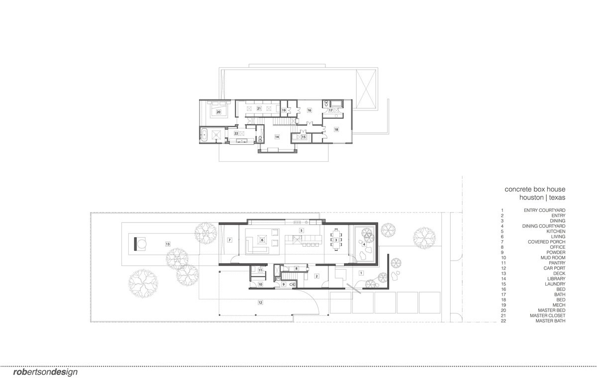
The brutalist house exterior is composed of three main volumes, which are a concrete box for the ground floor living space, a wooden box for the private bedroom and bathrooms upstairs, and a low concrete wall that encloses a courtyard around the front entryway.

Only two windows puncture the front of the fortress-like building, so that the solid sculptural element is disrupted as little as possible. Entry to the home is made between the two overlapping concrete walls in the front. A courtyard sanctuary awaits within the solid walls, which guides you to the front door.

The wooden gate aligns with a wood slatted window on the upper floor to create a cohesive aesthetic.

The brutalist courtyard walls are lined with elegant planting. A mounded groundcover softly moulds the edge of the gravel walkway,

The side entry gate makes access easier from the carport. Alternatively, a back entry door attaches the carport to a mudroom at the back of the property.

After passing through a darkened entry hall with a low ceiling, a thick walled opening leads into the tall and brightly lit main living space. The open layout is sandwiched between serene views of an enclosed courtyard to the front and a large garden at the rear. A multilevel floor creates clear zoning between a sunken lounge area, midway kitchen, and an elevated dining spot. A long run of storage cabinets serve as media units in front of the sitting area and become kitchen cupboards at the far end.

A tan leather sofa and contrasting cream chairs make up the comfortable lounge space. A square coffee table provides a bold black visual anchor in the centre of the open plan arrangement. Behind, a skylight bathes the central kitchen island in natural sunlight. The abundance of natural light into the living space and open views into the courtyard and garden come as a pleasant contradiction to the solid façade.

A long kitchen window looks out upon a narrow perimeter garden, which is large enough only to provide a pretty view.

The floor on one side of the kitchen island is elevated higher than the other, which means that the breakfast bar can be furnished with a comfortable, kid-friendly dining bench instead of bar stools.

The dining bench also reduces visual clutter, which is kept to a minimum throughout. The stone countertops in the centralised kitchen darkly complement the stark black window frames at each end of the room.

Initially, a concrete terrace extends the internal floor treatment to the outer living space, before an attractive wooden deck takes over. The stylish modern outdoor chair seen on the wood decking is the Grillage Easy Chair designed by Francois Azambourg for Ligne Roset.

The contrast of concrete and wood decking reflect the materials used in the build of the house itself.

A sculptural focal point is erected at the end of the modern garden, erupting from the shade of the trees.

Back inside of the home, the modern staircase design features a striking, single cantilevered concrete step at its base.

The rest of the staircase is solid wood treads and risers. A door to the first kid’s room can be seen up ahead, with a set of double doors leading into the laundry room on the right.

The ensuite master bathroom is a large and luxurious space with marble tiled walls and bespoke cabinetry.

The freestanding bathtub and the shower area are situated inside their own bright and airy wet chamber. An enclosed WC is situated at the opposite side of the double sink vanity unit.







