The size of an apartment might dictate how many people can comfortably live there, or how big a sofa can be, but it does not have to dictate the interior style. The four apartments in this post definitely show that, with each firmly situated in its own style while still making full use of its area - each of which measures under 50 square meters (538 square feet). From a Scandinavian style industrial loft to a wild and wonderful clock themed studio, these apartments take beautiful risks with the area they have, resulting in unique and comfortable homes.

The first space is just 49.8 square meters (536 square feet) but you would not guess it from the creative layout. Of course, the vaulted ceilings certainly help this apartment, which was design for a young couple, to feel bigger than it is. The visualizer for this space took inspiration from the stunning views of the sea, bringing in natural elements like reclaimed wood to create a warm, neutral space that could be enjoyed for years to come.

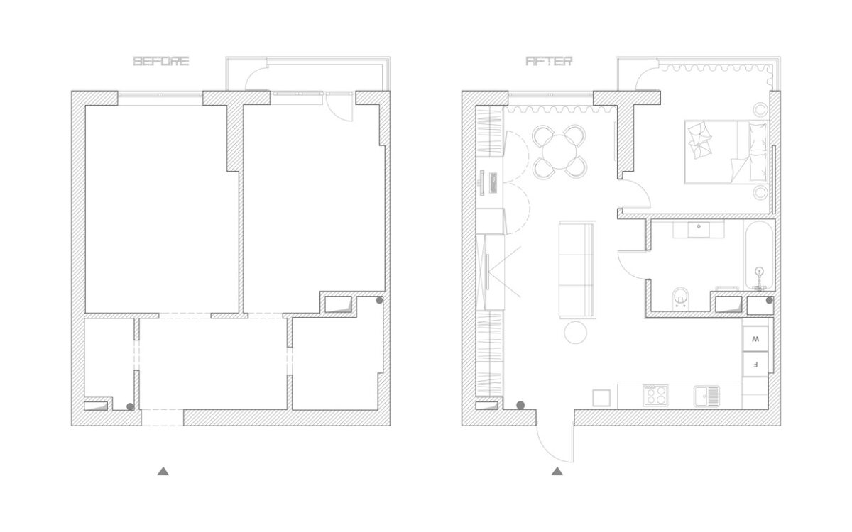
The second apartment is designed for a young, growing family. With less than 50 square meters to work with, it is no easy feat to find space for a couple and a child, but this apartment manages to do so with a sliding dividing wall that can be opened or closed depending on the time of day. This space is also a bit more vibrant than the last apartment with more bright colors that might appeal to a young child.

For the third apartment, we have a really unique space from Vitta Group Design Studio called London Sky. The apartment measures just 32 square meters (344 square feet) and tackles the struggle of those people who want to live in an urban center where there just is not enough space. The overall style is a marriage of classical British elements and more modern themes. The clock motif is particularly interesting, harkening back to an era where an analog clock was a necessity and instead turning the appliance into an accessory. Interior shutters separate the bed from the living area for a bit of delineation that does not crowd the room.

The final space is a much more modern take on the studio. With virtually no color and only a few furniture elements, this apartment actually feels incredibly spacious. A separate bedroom holds little more than the bed and it's not exactly clear what an occupant might do for storage, but the home is nonetheless quite stylish.
































