Designing a home for a family with young children requires creativity and balance. Stylish parents and growing children may have different requirements, but it's totally possible to create a family-friendly interior that looks stylish and meets the needs of kids and adults alike. This pair of two-bedroom homes from Lugerin Architects proves it – both enjoy efficient compact layouts, clean styling, and innovative features practical for family life. And look no further if you're searching for classy kid's bedroom ideas because these photos are sure to offer up some useful inspiration.

This first family-friendly apartment features comfortable open living spaces punctuated by a substantial volume that hides bright bedrooms and private spaces. Simple materials, clean lines, and straightforward arrangements allow for a minimalistic and flexible aesthetic that can adapt to the family's changing requirements over time.

A bright blue sofa adds a playful splash of color to the living room and brings out the bluish hues blended into the gray cabinetry in the background.

Simple midcentury-style Danish chairs embody the sleek Scandinavian sensibilities found throughout. It's hard to go wrong with this classic style.

The designers were able to save a few feet by modifying the sofa to include a soft bench on the back side, providing comfortable seating at the dining table. This helped leave some sunny open space around the balcony – and leaves more room for daydreaming while sitting on the small interior step leading to the sliding glass door.

Rather than just sticking to one pattern, a variety of wood gives each surface a distinct personality. The entire home echoes this trend.

A thick mirrored dividing wall looks almost weightless suspended from the ceiling. Its reflective surface helps make the hallway feel more spacious and a little more private at the same time.

Another large mirror makes an immediate impression at the entrance of the child's bedroom, with a view perfectly framed to create a sense of infinite continuity.

And what a bright and wonderful bedroom it is! Bright blue walls boost the energy of the space, creating a powerful contrast with the comfortable red beanbag chair.

Bright red makes a statement in the adult bedroom too. This restful respite keeps things simple with recessed ceiling spotlights, a small reading lamp, and a headboard with indirect lighting for ambiance.

It's hard to go wrong with furniture themed around a single designer, especially one as iconic as Arne Jacobsen – the Egg chair provides a cozy reading spot while the ottoman provides coordinated seating at the reading desk. The desk is similarly outfitted with the AJ table lamp.

A glass partition wall keeps the shower water from splashing outside the slightly recessed basin, a nice alternative to a full shower enclosure. The recessed basin also helps to catch excess water after a bath in the spacious slipper-style soak tub.

Edison bulb pendants over the sink offer classic appeal. Paired with indirect lighting from above, this close-walled alcove turned out to be quite bright and welcoming.

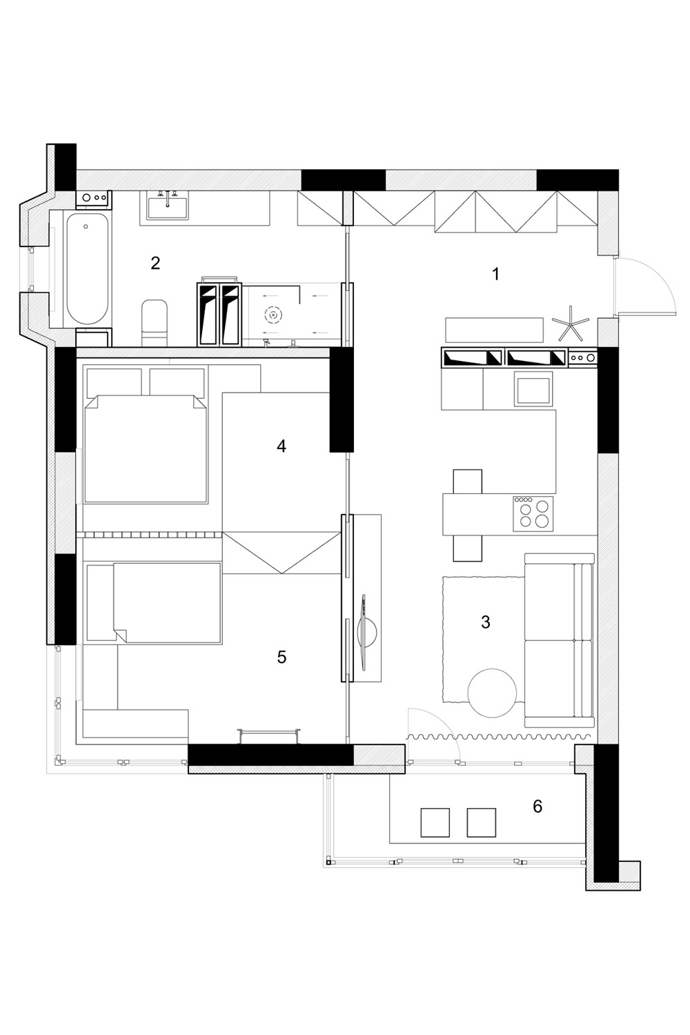
But what if you don't have an apartment as spacious as the first home? This second example demonstrates family-friendly design within a smaller and more compact layout. Despite the fact that the apartment began as a single-bedroom design, Lugerin Architects found an innovative way to split the room so parent and child can have independent spaces.

The dining table and breakfast stool combination maintains a low profile to allow for maximum penetration of light.

Sabrina Fossi's matte black FreakishCLOCK serves as a sleek and minimalistic reminder to live in the present moment. Also note how the wood-clad walls behind the television slide open to reveal the apartment's two bedrooms.

The transition to the kitchen is marked by a switch from wood floors to black tile. The bathroom, featured later, follows the same technique.

This elongated bench makes the entryway infinitely more usable, and the expansive mirror maximizes the amount of light the space receives.

The festive deer print is the first thing anyone sees as they enter the apartment thanks to its central placement. Straight ahead, a sliding wood door reveals the cozy bathroom.

This kid's room is absolutely adorable! Decorated in bright cerulean and outfitted with corner windows, it certainly seems like a fun place to dream and play. The abundance of integrated storage is another plus – the platform beneath the bed hides drawers and makes for an easy step up to the sofa/bed combination.

The adult bedroom has a similar platform with drawers. Because the two bedrooms are split from a single room, this half didn't get the benefit of windows so the designers created the divider wall out of transparent glass blocks to let in some natural sunlight.

Tiles and stone give the bathroom quite a different theme compared to the rest of the home. Caged pendant lights offer a touch of vintage appeal.






