Many style guides tend to focus on the historical side of Asian interior styling, often highlighting homes decorated with ornate antiques and bold symbolic colors. But what about interiors created with modern design fans in mind? These two beautiful homes – both located in Taiwan – demonstrate the sophisticated and minimalistic interior design trends popular in East Asia today. Each home incorporates the best of both international inspiration and traditional local influences, with a mix of furniture and fixtures from all over the world. Both are perfectly gorgeous and worth checking out.

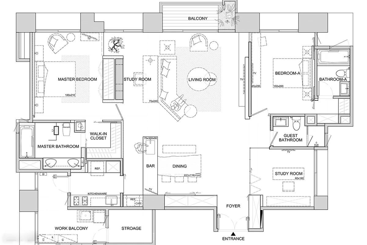
This next home was renovated to suit the needs of a young family with two children. The owners desired open public spaces to improve family interactivity, especially between the living room and the kitchen. Alternatively, private spaces were added to provide quiet and concentration for specific tasks.

Multiple varieties of dark stone give the bathroom a sophisticated textural palette, a lovely way to incorporate natural materials within a monochromatic color theme. Such a relaxing space – an ideal place to wash away the worries of the day.

The hallway is sparsely lit and looks exceptionally refined with high quality wood paneling in a sumptuously dark finish. Light wood flooring prevents the space from looking too imposing, the perfect balance.

Yet the library room is not only for books – it also contains the owner's impressive collection of wooden stamps in all shapes and sizes. The sliding display wall looks almost weightless with its lovely cove lighting.

The small library is an especially interesting space. A spacious table in the middle of the room makes it easy for the entire family to read and study together, turning a practice that is normally solitary into something everyone can enjoy together.

A small elegant office hides behind the entertainment console, making it easy for a working parent to interact with the children without sacrificing the quiet and concentration needed to get things done. Dark jade and muted wood tones foster a relaxing and tranquil environment.

The bluish-gray carpet and pale green pillow show that even the most subtle accents can add dimensionality to a natural color theme without overwhelming the emphasis on stylish neutrals. Glossy white panels brighten areas that might otherwise suffer from a lack of natural light.

Natural colors and smooth organic forms foster an atmosphere of comfort and relaxation. Recessed lights provide even illumination, and a cantilever task lamp provides extra light over the neat sectional sofa.

The first home, located in Taipei, features a gorgeous contrast of natural accents against a very refined industrial backdrop. The living room makes a bold statement with a stunning accent panel made of rusted iron against a rough concrete wall, all illuminated with technical modern lighting.

Linear design also defines the stone-clad bathroom, further emphasizing the rounded triangular sinks.

This monochromatic bedroom offers an especially relaxing refuge from the worries of the world. The linear effects are quite pleasing – horizontal stone effect wall cladding draws the eye horizontally to the curtains, where crisp vertical pleats frame the view.

A quiet study room contains very little furniture, the only decoration consisting of sentimental antiques. Poufs provide comfortable yet simple seating and slatted blinds offer privacy from the numerous surrounding apartment units.

Diamond weave screens made of coated metal take the place of doors allowing for a nearly seamless transition between rooms, preserving the field of view and allowing the passage of light.

Such a wonderful variety of textures on display here: matte, gloss, burled wood… Each element contributes.

Perhaps the most vibrant piece of furniture, the live edge table, brings a wealth of grounded organic energy to the dining area – yet the rest of the room features exceptionally strong industrial tones in the form of metallic accents. Here, another mirrored wall catches the reflection of the large living room window and efficaciously brightens the space.

Public spaces are open yet well defined. A raised ceiling in matte charcoal helps to delineate the open living room space. The dining and kitchen, on the other hand, enjoys the rustic treatment of playfully misaligned wood panels.

Color is sparingly used yet carefully balanced. Note the black set of dining chairs, punctuated by a singular white chair and a singular red chair. To the right, a lone blue pillow pops out from its neutral surroundings.

Most of the furniture takes advantage of thin wire legs for a light yet industrial look, whereas the substantial sofa offers a softer aesthetic rounded out by a textural white rug. This home uses mirrors extensively to heighten the sense of spaciousness in addition to maximizing natural light, demonstrated by the reflective backing on the integrated bookshelf.





